电站焊接闸阀有两种标准形式,一种是遵循ANSIB16.34和JISL1E101标准的引进型,另一种是按JB3595标准的国标型。其遵循的温度-压力等级是一致的,在一些管道中存在着某种互换关系。电站焊接闸阀中部采用无阀盖压力自紧式,在高温高压工况下具有良好的密封性能。自密封圈有两种材料,一种是低碳钢,另一种是柔性石墨316丝(网)。密封面上层焊钻基硬质合金,其加工后的纯金属层≥3mm,具有耐磨、耐高温、抗腐蚀、抗擦伤、使用寿命长。支管两端为焊接结构,焊按坡口可按标准或用户要求制作。电站焊接闸阀适用于火电厂、石油化工、冶金等高温高压的水、冶金等高温高压的水、蒸汽、油品、过热蒸汽的管道上。
电站焊接闸阀产品特点:
1、壳体精密铸造工艺,外观光洁,组织均匀,满足高中低压要求。
2、特殊材料配对,确保密封面高硬度及硬度差;精密研磨,光洁如镜,耐磨耐蚀,有效延长使用寿命。
3、背密封设计,有效保护密封填料,杜绝跑冒滴漏。
4、双闸板设计,密封面自动 100% 吻合,特别方便在线检修。
5、高压水强度,高压气体强度,无损检测等多道检测,全面控制铸钢件质量。
6、阀杆表面经精密磨削,抗擦伤,有效地减轻启闭力矩,操作更轻松。
7、采用特殊缓蚀填料结构设计,耐温耐压,无腐蚀,自动润滑,减轻启闭摩擦,避免对阀杆表面的腐蚀,进而免除外漏。
8、双向承压密封设计,满足各类特殊工况的苛刻要求。
9、严格手工配研,确保双侧密封面吻合度 90% 以上,实现气泡级出厂密封检测。
10、各类自控智能型电装选择,实现远程自动控制及自动检测。
电动焊接闸阀执行标准
● 制造与验收技术条件按日本火力发电用阀门标准E101和JB/T3595-93的规定;
● 结构长度按E101的规定或按用户提供尺寸
● 焊接坡口接电力工业管理标准78DG的规定或按用户提供尺寸。

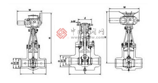
电动焊接闸阀结构图
电动焊接闸阀主要性能规范
公称压力 | 强度试验(MPa) | 密封试验(MPa) | 适用温度℃ | 适用介质 |
25.0 | 37.5 | 27.5 | ≤425 | 水 蒸汽 油品 |
32.0 | 48.0 | 35.2 | ≤425 |
P54100V | 30 | 11 | ≤540 |
P54140V | 42 | 15.4 |
P54170V | 48 | 18.7 |
电动焊接闸阀主要零件材料
1 | 阀体 | WCB-A105、WC6-12Cr1MoV、WC9-12Cr1MoV |
2 | 阀板 | WCB、WC6、WC9 |
3 | 阀杆 | 2Cr13、25Cr2MoV、20Cr1Mo1V1A |
4 | 阀盖 | WCB-35、WC6-12Cr1MoV、WC9-12Cr1MoV |
5 | 压板 | 2Cr13、25Cr2MoV、20Cr1Mo1V1A |
6 | 填料 | 增强柔性石墨、V型聚四氟乙烯填料 |
7 | 压盖 | 1Cr13、WCB、CF8、CF3、CF8M、CF3M |
8 | 支架 | WCB、WC6、WC9 |
9 | 电动执行器 | 壳体(HT200、WCB) |