高加出口四通阀(高加出口止回阀)详细介绍
高加进出口四通阀主要零件材料
阀体:优质碳钢,阀盖:优质碳钢
阀杆:铬钼钢,密封圈:增强柔性石墨
阀瓣:硬质合金,阀座:硬质合金
填料:柔性石墨,支架:碳钢
高加进出口四通阀主要型号规格:
型号:H61Y;H62Y
公称压力:PN 20.0,25.0,30.0mpa
公称通径:DN 175,225,275,300mm
高加出口止回阀一般适用于清净介质,不宜用于含有固体颗粒和粘度较大的介质.
高加进出口四通阀结构特点:
1.阀门中腔采用压力自紧密结构,密封性好;
2.阀门上部设计了手轮关紧结构,高加解列、检修时,旋下手轮顶紧阀瓣,可防止给水泄漏进入高加及导致密封面损坏,防止误操作而使给水进入高加,并在阀门因意外卡阻时也能够顺利关闭阀门;
3.进口阀采用了外置活塞室结构,控制介质为凝结水,控制系统因在低温度、低压力、低压差下工作而具有较高的可靠性;
高加给水加热器用进口阀(入口阀)、出口阀(出口止回阀)系列产品分别用于50MW-600MW锅炉高压加热器进口和出口处,作为高加的保护阀门。高加运行过程中,当发生管系泄漏或疏水阀失灵等情况时会导致汽侧水位升高,易造成高压给水倒灌入汽轮机。为防止事故发生,当汽侧水位达到报警水位时,电接点水位发讯器接点接通,快速启闭电磁阀打开,凝结水进入进口阀活塞上方,进口阀瓣关闭,切断进口高加的给水,同时旁路打开,给水经旁路进入锅炉,高加解列,从而保证机组正常运行。高加投入时,进口阀阀瓣在系统内给水压力作用下自动开启并切断旁路,给水经过高压加热器后进入锅炉,从而提高电厂的热效率并保证机组安全运行。

高加给水加热器保护系统原理图
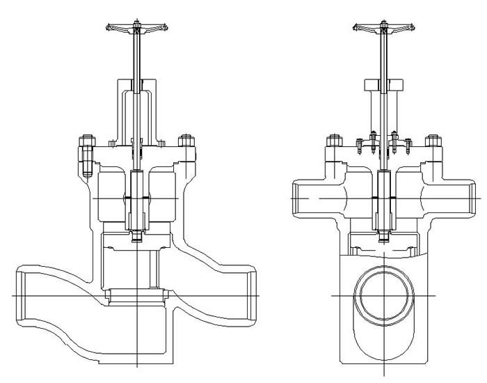
高加进出口四通阀(H62Y、高加出口止回阀)示意图如下:

高加进出口四通阀(H62Y、高加出口止回阀)结构示意图
由于高加进出口四通阀(H62Y、高加出口止回阀)产品改进和技术创新或者一些特殊要求,各种阀门的连接尺寸可能会有所变化,请联系生产厂家,以得到最新的产品资料。